[Ni...] Posted August 1, 2025 Share Posted August 1, 2025 My drawing specifies the feature shown below. I am having trouble creating a feature that utilizes some or all slot that can use the MMC modifier. Does anyone have any recommendations on a feature type that will capture either the ends of the slot, flats of the slot, or both that allows the selection of the MMC modifier when creating the 0.014 position characteristic to A/B? Link to comment Share on other sites More sharing options...
[To...] Posted August 1, 2025 Share Posted August 1, 2025 (edited) Please sign in to view this username. You could either create a Symmetry Plane by probing both sides or, a Symmetry Plane and recall from 2 slot paths. Symmetry Plane allows you to take advantage of MMC. Here's how I create the correct nominals for a Symmetry Plane. I extract the 2 side planes. Make sure they don't contain any data. Create the Symmetry Plane, select Recall Feature Points, select the 2 planes. This will use nominal data of both planes to create nominals of Symmetry Plane. Close the SymPlane. Re-open SymPlane, select Recall Feature Points (Re-calculate Nominal Geometry should already be un-checked). Select the 2 slots. Set your view so you in line with slot. Click "Show Points icon at top. Click Box icon to the right. Drag a window to capture points from planes area of slot. See pic below. Edited August 1, 2025 2 Link to comment Share on other sites More sharing options...
[Ri...] Posted August 1, 2025 Share Posted August 1, 2025 This is a boundary condition, it's not the same as just a slot position. You will need to use Profile. Link to comment Share on other sites More sharing options...
[To...] Posted August 4, 2025 Share Posted August 4, 2025 Please sign in to view this quote. I missed that. Link to comment Share on other sites More sharing options...
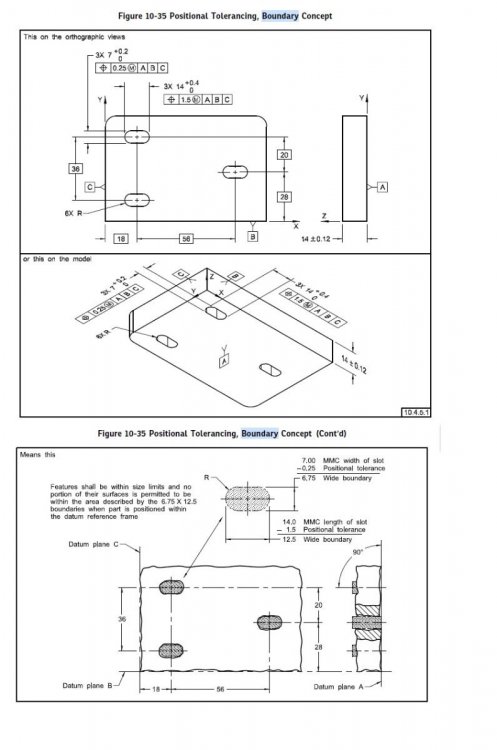
[To...] Posted August 4, 2025 Share Posted August 4, 2025 According to ASME Y14.5, I feel the term Boundary may not necessarily mean the the slot as a whole, based on the fact that there are independent position requirements for the width and length. Note: I am taking a very open-minded approach to this. I couldn't find anything regarding MMB or LMB. As you can see from the attached pic, there is none. 10.4.5 Noncircular Features of Size The fundamental principles of true position dimensioning and positional tolerancing for circular features of size, such as holes and bosses, apply also to noncircular features of size, such as open-end slots, tabs, and elongated holes. For such features of size, a positional tolerance may be used to locate the center plane established by parallel surfaces of the feature of size. The tolerance value represents a distance between two parallel planes; therefore, the diameter symbol shall be omitted from the feature control frame. See Figures 10-31 and 10-32. 10.4.5.1 Noncircular Features of Size at MMC. When a positional tolerance of a noncircular feature of size applies at MMC, the following apply: (a) In Terms of the Surfaces of a Feature of Size. While maintaining the specified size limits of the feature, no surface element of an internal feature of size shall be inside a theoretical boundary located at true position and no surface element of an external feature of size shall be outside a theoretical boundary located at true position. See Figure 10-33. (b) In Terms of the Center Plane of a Feature of Size. When a feature of size is at MMC, its center plane must fall within a tolerance zone defined by two parallel planes equally disposed about the true position. The width of this zone is equal to the positional tolerance. See Figure 10-34. This tolerance zone also defines the limits of variation in the orientation of the center plane of the feature of size in relation to the referenced datums. It is only where the feature of size is at MMC that the specified tolerance zone applies. When the unrelated AME size of an internal feature of size is larger than MMC, additional positional tolerance results. Likewise, where the unrelated AME size of an external feature of size is smaller than MMC, additional positional tolerance results. This increase of positional tolerance is equal to the difference between the specified MMC limit of size and the unrelated AME size of the feature of size. (c) In Terms of the Boundary of a Feature of Size. A positional tolerance applied to a feature of size establishes a control of the surface relative to a boundary. While maintaining the specified size limits of the feature of size, no element of its surface shall violate a theoretical boundary of identical shape located at true position. For an internal feature, the size of the boundary is equal to the MMC size of the feature minus its positional tolerance. See Figure 10- 35. For an external feature, the size of the boundary is equal to the MMC size of the feature plus its positional tolerance. The term “BOUNDARY” may be placed beneath the feature control frames but is not required. In this example, a greater positional tolerance is allowed for length than for width. When the same positional tolerance can be allowed for both, only one feature control frame is necessary, directed to the feature by a leader and separated from the size dimensions. NOTE: This method may also be applied to other irregular shaped features of size when a profile tolerance is applied to the feature and the center is not conveniently identifiable. See subsection 11.8. Link to comment Share on other sites More sharing options...
[Ni...] Posted August 6, 2025 Author Share Posted August 6, 2025 (edited) Please sign in to view this username. Thank you for posting the ASME guidelines that relate to this feature. This at least helps me understand the callout a little more than I did before. The way I interpret what section (C) in your post is stating - I somehow need to create a theoretical feature that is (.267" wide and at nominal position) and compare the measured feature to verify that no 'boundary' falls within the limits of that theoretical feature. This is not something I have personally done or seen done. If you have any ideas, I'm all ears. Our customer accepted our FAIR for this specific part, but it was not entirely accurate to the callout. We simply reported that the .282+/-.005 and that feature position (symmetry plane of the slot flats) to A/B. I wouldn't be surprised if even they aren't 100% sure what type of measurements they need in this situation... To me, at least reporting the 'Boundary' condition of the flats is the equivalent of what is shown below (Profile measurement, inwards into infinity for shape of zone, with a .0095 tolerance to A/B.) I get the .0095" profile tolerance by taking half of (.282 - .267.) It seems to look right below at least when considering the flats of the slot (The outer blue is the nominal the nominal curve/slot, the inner red is the tolerance frame for the 'Inwards to infinity .0095" profile. The Inner blue is the nominal slot with a width of .267(boundary.) Edited August 6, 2025 Add more information 1 Link to comment Share on other sites More sharing options...
Recommended Posts
Please sign in to comment
You will be able to leave a comment after signing in