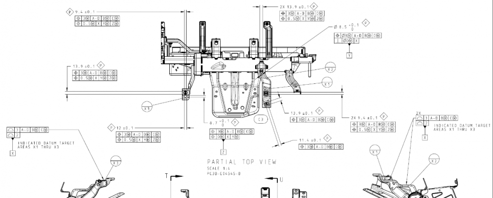
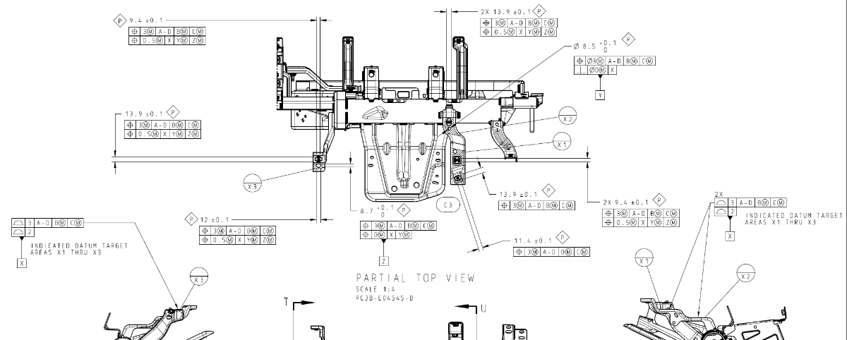
[sh...] Posted March 17 Share Posted March 17 Hello everyone, I am attempting to make a program for the sub datum XYZ in this drawing but I cant seem to get it right. How would you go about this? Link to comment Share on other sites More sharing options...
[Sv...] Posted March 18 Share Posted March 18 To me, it looks like an RPS alignment is required. The circles labeled x1, x2, and x3 suggest this. Are there XYZ coordinates corresponding to x1, x2, and x3 in the drawing below? Link to comment Share on other sites More sharing options...
[sh...] Posted March 18 Author Share Posted March 18 Please sign in to view this quote. There are not so I am assuming it is looking for a plane that recalls those three contact locations. My only issue is when I make a plane out of them it does not look right. I tried an RPS using all three locations in Z and the 4way circle as x and y but then I am unsure of which to select as my 6th selection. So the rps had the 4way(Y datum), which is also X 2, selected as x y z and the other two X areas selected as z but then im a bit stumped on the last selection. I know it should be the Z datum but unsure as to which axis. Link to comment Share on other sites More sharing options...
Recommended Posts
Please sign in to comment
You will be able to leave a comment after signing in